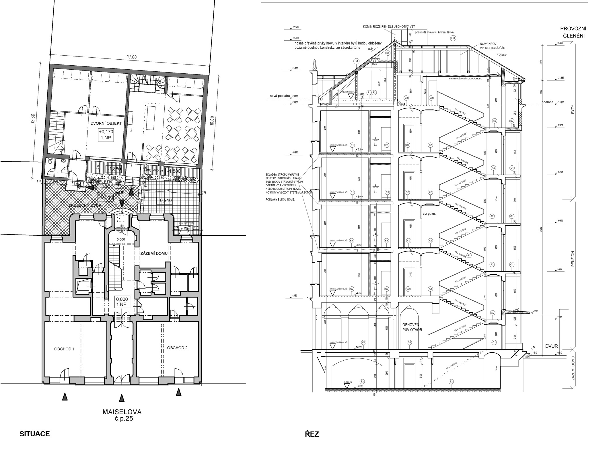
Maiselova čp. 25


Rekonstrukce obytného domu na Starém Městě.

Realizace: 2003

 

Maiselova čp. 25
Maiselova čp. 25
Maiselova čp. 25
Maiselova čp. 25

Autorská práva: Ing. arch. Lubomír Křivka. Bez souhlasu autora je výroba kopií, šíření a jakékoliv používání výše prezentovaných architektonických návrhů zakázané a trestně postižitelné.